ALMELO, Paganinistraat 31
 
  • TypeDetached house
  • Living area108 m²
  • Plot size169 m²
  • Bedrooms5
  • Available since14-07-2023
  • Availabilty In consultation
Request viewing

Description Paganinistraat 31

Read more
Contact us

iQ Makelaars Kantoor Almelo
Danny Mulder
Twentepoort Oost 34
7609 RG Almelo

T  0546 - 305 301
E  Almelo@iQMakelaars.nl

Specifications

Construction

  • Type Houses
  • Type Detached house
  • Construction year 1968

General

  • Availabilty In consultation

Energy

  • Energy label C
  • Boiler Combi
  • Boiler owned Ja
  • Boiler fuel Gas
  • Hot water heating Ja
  • Present isolation Dakisolatie, glasisolatie

Layout

  • Bedrooms 5
  • Garden Ja
  • Garden location Noordoost

Dimensions

  • Living area 108 m²
  • Plot area 169 m²
  • House contents 449 m³
  • Garden surface 21 m²
Read more

Sign up for our housing e-mail / recent offers!

Mapping

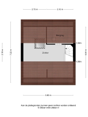
  Plattegrond Paganinistraat 31 ALMELO
  Plattegrond Paganinistraat 31 ALMELO
  Plattegrond Paganinistraat 31 ALMELO
  Plattegrond Paganinistraat 31 ALMELO
  Plattegrond Paganinistraat 31 ALMELO
  Plattegrond Paganinistraat 31 ALMELO
  Plattegrond Paganinistraat 31 ALMELO
  Plattegrond Paganinistraat 31 ALMELO

Request viewing Paganinistraat 31

Comparable offer ALMELO

Geraniumstraat Sold
ALMELO
Geraniumstraat 15
   € 225.000,- k.k.
Details
Paganinistraat Sold
ALMELO
Paganinistraat 27
   € 219.900,- k.k.
Details
De Buizerd Sold
ALMELO
De Buizerd 40
   € 224.500,- k.k.
Details

Follow us