ALMERE, Jerseystraat 25
 
  • TypeBungalow
  • Living area110 m²
  • Plot size173 m²
  • Bedrooms3
  • Available since27-01-2022
  • Availabilty In consultation
Request viewing

Description Jerseystraat 25

We offer you this recently modernized semi-bungalow with bathroom and large bedroom on the ground floor with a price starting from € 372,500.

Particularities:
• New luxury bathroom 2020.
• New toilet 2021.
• Bedroom and bathroom on the ground floor.
• Own spacious driveway with carport.
• Wide living room.
• Total 110 m2 of which 79 m2 on the ground floor.

You enter this fine home dry from your own driveway.

Layout:
From the hall you reach the bathroom and bedroom and on the left the toilet and the spacious living room.
The hanging toilet was completely renovated in 2021 and equipped with a gray floor tile with a large white luxury wall tile.

Bedroom-Bathroom ground floor:
The bathroom was completely renovated in 2020 in a beautiful calm color scheme. A beautifully spacious walk-in shower and a spacious washbasin with ample storage space. The spacious bedroom offers more than enough space for a wardrobe with a spacious bed.

Living room:
Step into the very wide living room (approx. 8.5 meters), here is an attractive hardwood Kempas parquet floor and enough space for a large dining table.

Kitchen:
The open kitchen is very neat and recently equipped with a new dishwasher.
Here you will also find direct access to the spacious utility room with washing machine connection and door to the outside.

patio garden:
The attractive garden on the southwest is well maintained, completely paved but surrounded by greenery.

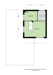
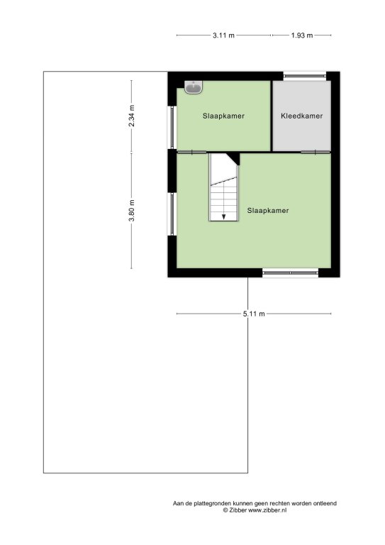
1st floor:
Here is an open spacious bedroom with walk-in closet. The 2nd bedroom has a sink.

Location:
The Oostervaarders train station is within walking distance, which takes you directly to Amsterdam. Within a few minutes by car you are on the A6 Amsterdam - Lelystad and the A27 in the direction of Amersfoort - Hilversum.
Bus stop, shops, various schools are all in the immediate vicinity. But various nature reserves are also within cycling distance.

If you have become curious about this certainly not standard home, schedule a viewing quickly.
We start viewing on Monday 27 December and take plenty of time for you.

Read more
Contact us

iQ Makelaars Hoofdkantoor
Michael van Riemsdijk
Roessinghsbleekweg 21,
7522 AH Enschede

T  088 - 700 99 99
E  info@iQMakelaars.nl

Specifications

Construction

  • Type Houses
  • Type Bungalow
  • Construction year 2003

General

  • Availabilty In consultation

Layout

  • Bedrooms 3
  • Garden Ja
  • Garden location Zuidwest

Services

  • Parking lot Ja

Dimensions

  • Living area 110 m²
  • Plot area 173 m²
  • House contents 391 m³
  • Garden surface 29 m²

Energy

  • Boiler Combi
  • Boiler owned Ja
  • Boiler fuel Gas
  • Boiler year 2008
  • Hot water heating Ja
  • Present isolation Dakisolatie, muurisolatie, glasisolatie
Read more
  • District and neighborhood
    Eilandenbuurt
  • Population
    Avg. household size
    2.5 person
  • Retail
    Large supermarket
    0.9km
  • Income
    Avg. income
    €26.600 p/y
  • Transport
    Station
    7.5km
  • Living
    Avg. home value
    €234.000
    Koopwoningen
    77%

Sign up for our housing e-mail / recent offers!

Images

  Jerseystraat 25 ALMERE
  Jerseystraat 25 ALMERE
  Jerseystraat 25 ALMERE
  Jerseystraat 25 ALMERE
  Jerseystraat 25 ALMERE
  Jerseystraat 25 ALMERE
  Jerseystraat 25 ALMERE
  Jerseystraat 25 ALMERE
  Jerseystraat 25 ALMERE
  Jerseystraat 25 ALMERE
  Jerseystraat 25 ALMERE
  Jerseystraat 25 ALMERE
  Jerseystraat 25 ALMERE
  Jerseystraat 25 ALMERE
  Jerseystraat 25 ALMERE
  Jerseystraat 25 ALMERE
  Jerseystraat 25 ALMERE
  Jerseystraat 25 ALMERE
  Jerseystraat 25 ALMERE
  Jerseystraat 25 ALMERE
  Jerseystraat 25 ALMERE
  Jerseystraat 25 ALMERE
  Jerseystraat 25 ALMERE
  Jerseystraat 25 ALMERE

Mapping

  Plattegrond Jerseystraat 25 ALMERE
  Plattegrond Jerseystraat 25 ALMERE
  Plattegrond Jerseystraat 25 ALMERE
  Plattegrond Jerseystraat 25 ALMERE

Request viewing Jerseystraat 25

Comparable offer ALMERE

Klavergriend Sold
ALMERE
Klavergriend 9
   € 375.000,- k.k.
Details
Jeroen Boschplantsoen Sold
ALMERE
Jeroen Boschplantsoen 40
   € 375.000,- k.k.
Details
Adriaan van Ostadestraat Sold
ALMERE
Adriaan van Ostadestraat 30
   € 372.500,- k.k.
Details

Follow us