Apeldoorn, Germanenlaan 196
 
  • TypeAppartment
  • Living area77 m²
  • Bedrooms2
  • Available since22-11-2025
  • Availabilty In consultation
Request viewing

Description Germanenlaan 196

Germanenlaan 196 – Apeldoorn

3-room apartment (formerly 4-room) with 2 balconies, top-floor location, fully fitted with uPVC frames and HR++ glazing

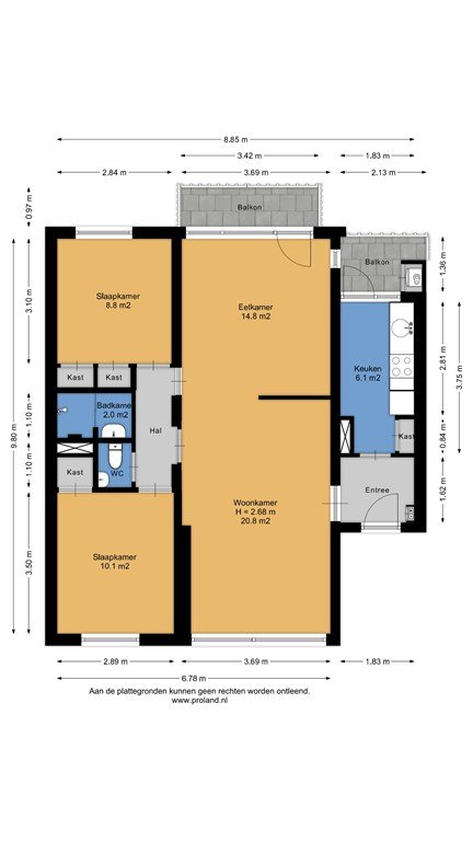
Located at Germanenlaan 196, this well-maintained 3-room apartment, originally a 4-room layout, is situated on the top floor of a well-kept complex. The property is fully equipped with uPVC window frames and HR++ double glazing, and features two balconies, two well-proportioned bedrooms, and a through-living room with adjoining dining area.

Layout:
The apartment is reached via the secured entrance. From here, the kitchen is accessible, equipped with various built-in appliances including a refrigerator, integrated microwave, and gas hob. The kitchen also provides access to the smaller balcony.

The through-living room and the adjoining dining area form one continuous living space. The former master bedroom has been incorporated into the living area, creating a generous and practical layout suitable for both a sitting area and a dining section. Large windows on both sides provide a pleasant atmosphere and a natural connection with the outdoors. The larger balcony is accessible from the dining area.

From the living room, a hallway leads to the two spacious bedrooms, the bathroom, and the separate toilet. Both bedrooms offer ample space for a double bed, home office or study setup.

In the basement, the apartment includes a private storage room, ideal for bicycles and additional storage.


Surroundings:
The district Orden is known for its quiet and green character. Just 2 minutes by bike away is the Ordenplein, offering a supermarket, drugstore, bookshop and various other shops. The city centre of Apeldoorn can be reached in approximately 8 minutes by bicycle.
The nearby Orderbos is a popular area for walking, sports and recreation and is also close at hand.



Key features:

-3-room apartment (formerly 4-room)

-Top-floor location

-Through-living room with dining area

-2 balconies

-Fully equipped with uPVC frames and HR++ glazing

-Private storage room in the basement

-Energy label: …

-Quiet location in Orden, near Ordenplein and Orderbos

Asking price: €275,000 k.k.
Transfer: In consultation

Interested?
Call 055 – 760 1777 or send us an email.

We will be happy to schedule a viewing for you!

Read more
Contact us

Loolaan 31 A
7314 AB Apeldoorn

T  055 - 760 1777
E  Apeldoorn@iQMakelaars.nl

Specifications

Construction

  • Type Houses
  • Type Appartment
  • Construction year 1959

General

  • Availabilty In consultation

Energy

  • Energy label E
  • Boiler owned Ja
  • Boiler fuel Gas

Layout

  • Bedrooms 2

Dimensions

  • Living area 77 m²
  • House contents 259 m³
Read more

Sign up for our housing e-mail / recent offers!

Request viewing Germanenlaan 196

Comparable offer Apeldoorn

Oude Beekbergerweg Sold
APELDOORN
Oude Beekbergerweg 236
   € 275.000,- k.k.
Details
Vosselmanstraat Sold
APELDOORN
Vosselmanstraat 566
   € 265.000,- k.k.
Details
Pottenbakkersdonk Sold
APELDOORN
Pottenbakkersdonk 313
   € 275.000,- k.k.
Details

Follow us