EDE, Bellestein 193
 
  • TypeMaisonette
  • Living area126 m²
  • Bedrooms4
  • Available since20-09-2021
  • Availabilty In consultation
Request viewing

Description Bellestein 193

Now for sale: Bellestein 193 in Ede

In the Bellestein shopping center in Ede we find this very spacious apartment (maisonette type) with no less than 125 m2 of living space, spread over 3 full floors, with 4 spacious bedrooms and a large terrace of approximately 26 m2 located on the southwest.

This apartment is of type "C" and is the largest type of this complex. The houses are located near all amenities of the shopping center and the adjacent health center with GPs, pharmacy and physiotherapist, but also close to amenities such as schools, almost all imaginable sports facilities, near roads (A12, A30) and within cycling distance of the center of Ede.

The apartments can be reached via a staircase or via a ramp. You can park by means of a permit or by public parking.

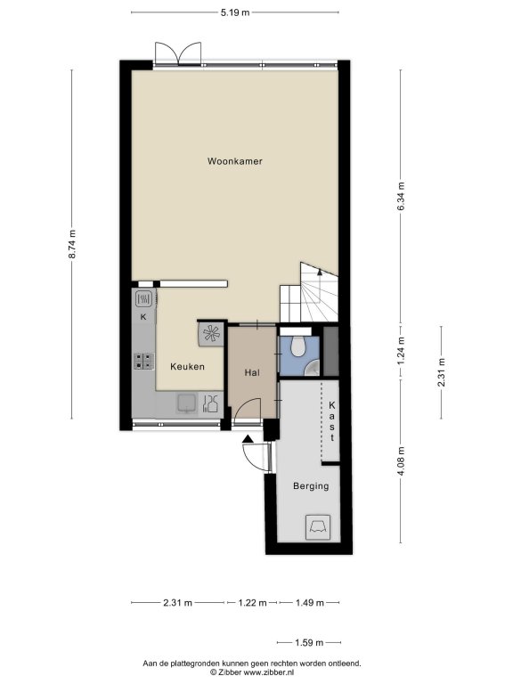
Through the front door we enter the hall where the meter cupboard and access to the toilet are located. Right next to the front door is a large indoor storage room (over 6m2) with connection for the washing machine.

A connecting door gives access to the spacious living room of approximately 32 m2. The large terrace can be accessed from the living room through French doors. This lovely terrace, located on the southwest, offers the opportunity to enjoy the sun almost all day long. Any necessary shade is also guaranteed by the presence of a more than 5-meter-wide awning (cloth replaced in 2019). At the front of the house we find the semi-open kitchen. The kitchen is equipped with various built-in appliances, such as gas stove (2020), oven and microwave and a number of separate appliances, fridge / freezer (2018) and dishwasher (2020). A roller shutter has been placed on the outside of the kitchen.

Via an open staircase in the corner of the living room we reach the first floor of the apartment. Also on the first floor, all walls are still straight, which offers a lot of space for the 3 bedrooms. These are approximately 13.2 m2, 10.6 m2 and 9.2 m2 respectively. The bathroom also find on this floor. The bathroom has a bath (shower in bath), a second toilet and a sink with mirror.

On the surprisingly large second floor is another large bedroom (with dormer window). This room has a size of approximately 20m2 and is now used as a guest room / study room / home workplace. In addition to this room, there is also a storage room and the central heating boiler has been installed.

The spacious attic storage room can be reached by means of a loft ladder.

In short, an apartment with all desirable and conceivable space.

Specialties/Features:
- Very large apartment (125m2 living space)
- Spacious sun terrace of 26m2, located on the southwest
- 4 spacious bedrooms
- Extra dormer window on the second floor.
- Indoor storage room with washing machine connection
- Extra storage space through storage attic
- Located in the shopping center
- Roads to reach within a few minutes
- Center of Ede within cycling distance
- Sports facilities around the corner
- Contribution Association of Owners € 135.00 per month
- Acceptance in consultation

Also so enthusiastic about this apartment? Request a viewing quickly

Read more
Contact us

iQ Makelaars Hoofdkantoor
Cees van Holland
Roessinghsbleekweg 21,
7522 AH Enschede

T  088 - 700 99 99
E  info@iQMakelaars.nl

Specifications

Construction

  • Type Houses
  • Type Maisonette
  • Construction year 1980

General

  • Availabilty In consultation

Layout

  • Bedrooms 4
  • Garden Ja
  • Garden location Zuidwest

Services

  • Parking lot Ja

Dimensions

  • Living area 126 m²
  • House contents 444 m³
  • Garden surface 26 m²

Energy

  • Boiler Combi
  • Boiler fuel Gas
  • Boiler year 2010
  • Hot water heating Ja
  • Present isolation Dakisolatie, spouwisolatie, muurisolatie, vloerisolatie, glasisolatie
Read more
  • District and neighborhood
    De Steinen
  • Population
    Avg. household size
    1.9 person
  • Retail
    Large supermarket
    0.5km
  • Income
    Avg. income
    €21.700 p/y
  • Transport
    Station
    2.9km
  • Living
    Avg. home value
    €170.000
    Koopwoningen
    56%

Sign up for our housing e-mail / recent offers!

Images

  Bellestein 193 EDE
  Bellestein 193 EDE
  Bellestein 193 EDE
  Bellestein 193 EDE
  Bellestein 193 EDE
  Bellestein 193 EDE
  Bellestein 193 EDE
  Bellestein 193 EDE
  Bellestein 193 EDE
  Bellestein 193 EDE
  Bellestein 193 EDE
  Bellestein 193 EDE
  Bellestein 193 EDE
  Bellestein 193 EDE
  Bellestein 193 EDE
  Bellestein 193 EDE
  Bellestein 193 EDE
  Bellestein 193 EDE
  Bellestein 193 EDE
  Bellestein 193 EDE
  Bellestein 193 EDE
  Bellestein 193 EDE
  Bellestein 193 EDE
  Bellestein 193 EDE

Mapping

  Plattegrond Bellestein 193 EDE
  Plattegrond Bellestein 193 EDE
  Plattegrond Bellestein 193 EDE
  Plattegrond Bellestein 193 EDE
  Plattegrond Bellestein 193 EDE
  Plattegrond Bellestein 193 EDE
  Plattegrond Bellestein 193 EDE
  Plattegrond Bellestein 193 EDE

Request viewing Bellestein 193

Comparable offer EDE

Palmedreef Sold
EDE
Palmedreef 13
   € 275.000,- k.k.
Details
Telefoonweg Sold
EDE
Telefoonweg 154
   € 280.000,- k.k.
Details
Hyacintstraat Sold
ENSCHEDE
Hyacintstraat 58
   € 265.000,- k.k.
Details

Follow us