ENSCHEDE, Burgemeester Stroinkstraat 287
 
  • TypeSemidetached
  • Living area146 m²
  • Plot size2299 m²
  • Bedrooms3
  • Available since22-02-2023
  • Availabilty In consultation
Request viewing

Description Burgemeester Stroinkstraat 287

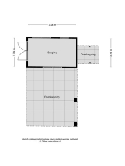
Characteristic 1930s house with a beautiful free location and a view over the meadows. This semi-detached house has beautiful original details, high ceilings and stained glass windows. The house has a large backyard with a double horse box, storage room and carport. The two extra lots provide a plot area of ??no less than 2299 square meters. The University of Twente, the Business & Science Park and various sports facilities are a short distance away.

Layout
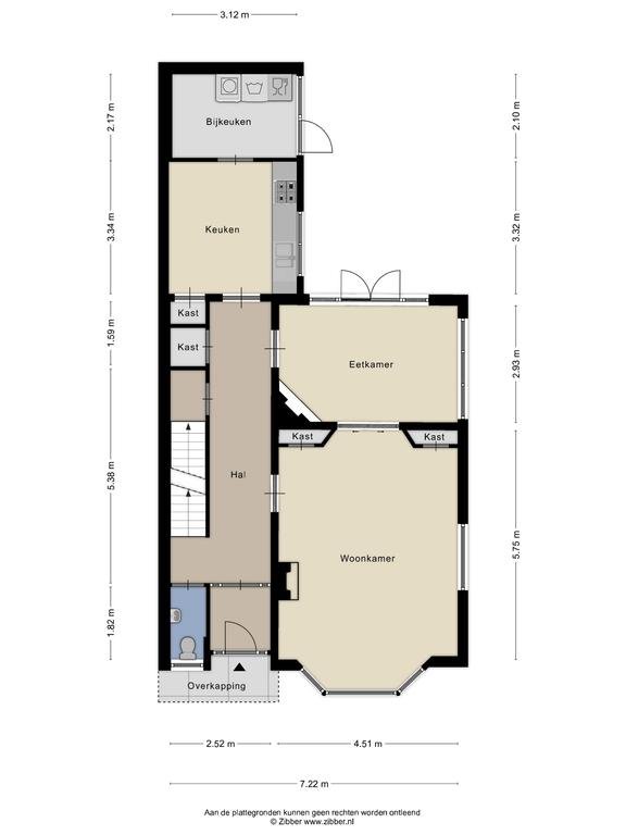
Ground floor:
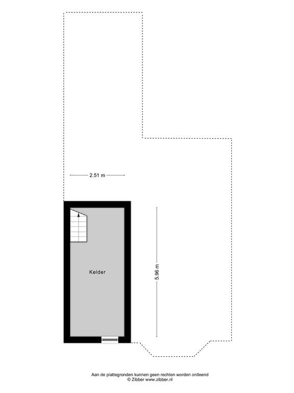
Entrance/hallway, vestibule with stained glass windows, spacious hall, toilet with fountain, spacious living room with wooden floor and front and back room with wooden floor, wood stove, room en suite doors, second fireplace and patio doors to the garden, pantry cellar, meter cupboard, kitchen with oven, 4-burner stove and extractor hood, pantry, utility room with connections for washing machine and dryer.

First floor:
Landing, 3 bedrooms, 2 spacious rooms with fitted wardrobes, bathroom with sink, bath, shower and toilet, staircase to…
Second floor:

CV preparation and possibility for an extra bedroom.

Particularities:
- Year of construction: 1928;
- Central heating boiler, Remeha Quinta 2006;
- Living area: 146 m2;
- Plot area: 2299 m2;
- Content house: 634 m3;
- Spacious lot with beautiful views.
Viewing days have been planned especially for this house, so that you can easily view an extensive and RIVM-proof time slot of approximately 30 minutes that you can reserve yourself.

Wednesday 15-08-2021 from 2 p.m. - 5 p.m.
Thursday 16-08-2021 from 2 pm - 5 pm.

Interested? We would like to invite you for a viewing.

Read more
Contact us

iQ Makelaars Kantoor Enschede
Danny Mulder
Roessinghsbleekweg 21,
7522 AH  Enschede

T  053 - 760 1600
E  Enschede@iQMakelaars.nl

Specifications

Construction

  • Type Houses
  • Type Semidetached
  • Construction year 1928

General

  • Availabilty In consultation

Energy

  • Energy label E
  • Boiler Combi
  • Boiler owned Ja
  • Boiler fuel Gas
  • Boiler year 2006
  • Hot water heating Ja
  • Present isolation Dakisolatie, glasisolatie

Layout

  • Bedrooms 3
  • Garden Ja
  • Garden location Zuidwest

Services

  • Parking lot Ja

Dimensions

  • Living area 146 m²
  • Plot area 2299 m²
  • House contents 634 m³
Read more
  • District and neighborhood
    Buurtschap Twekkelo
  • Population
    Avg. household size
    2.3 person
  • Retail
    Large supermarket
    3.6km
  • Income
    Avg. income
    €0.000 p/y
  • Transport
    Station
    4.9km
  • Living
    Avg. home value
    €409.000
    Koopwoningen
    64%

Sign up for our housing e-mail / recent offers!

Mapping

  Plattegrond Burgemeester Stroinkstraat 287 ENSCHEDE
  Plattegrond Burgemeester Stroinkstraat 287 ENSCHEDE
  Plattegrond Burgemeester Stroinkstraat 287 ENSCHEDE
  Plattegrond Burgemeester Stroinkstraat 287 ENSCHEDE
  Plattegrond Burgemeester Stroinkstraat 287 ENSCHEDE
  Plattegrond Burgemeester Stroinkstraat 287 ENSCHEDE
  Plattegrond Burgemeester Stroinkstraat 287 ENSCHEDE
  Plattegrond Burgemeester Stroinkstraat 287 ENSCHEDE
  Plattegrond Burgemeester Stroinkstraat 287 ENSCHEDE
  Plattegrond Burgemeester Stroinkstraat 287 ENSCHEDE
  Plattegrond Burgemeester Stroinkstraat 287 ENSCHEDE
  Plattegrond Burgemeester Stroinkstraat 287 ENSCHEDE

Request viewing Burgemeester Stroinkstraat 287

Comparable offer ENSCHEDE

Julie de Graaglaan Sold
ENSCHEDE
Julie de Graaglaan 67
   € 550.000,- k.k.
Details
Bosuilstraat Sold with reservation
ENSCHEDE
Bosuilstraat 16
   € 550.000,- k.k.
Details

Follow us