HAAKSBERGEN, Meijersgaardenweg 1 C
 
  • TypeFree-standing
  • Living area95 m²
  • Plot size5155 m²
  • Bedrooms2
  • Available since16-11-2022
  • Availabilty In consultation
Request viewing

Description Meijersgaardenweg 1 C

Particularly beautiful and secluded recreation bungalow.

A super beautiful location with an unprecedentedly beautiful view over the Buurserbeek, enjoying everything the beautiful Twente landscape has to offer.

The accessibility to the village of Buurse is approximately 10 minutes by bike, 4 minutes by car. Haaksbergen, with all possible amenities, about 10 minutes by car, Enschede, about 15 to 20 minutes.

Living at Meyersgaardenweg 1c in Buurse really has everything outdoor living has to offer. Enjoy peace and nature around you after a busy day at work. A lovely walk along the Buursebeek. The view at the rear consists of farmland only.

The house itself is in perfect condition with luxury and comfort that makes living and staying at this location very special. Every day a new holiday feeling, every season, a real opportunity with a very special and pleasant living and residential climate.

Particularities;

- Lot size no less than 5155 m2
- Gross floor area 219, living area 95 m2, volume 452 m3
- Heating and hot water through HR combi boiler 2009 (owned)
- Partly equipped with a comfortable underfloor heating and fireplace in the living room
- Top floor with air conditioning
- Energy-efficient due to WTW installation and good insulation


We would be happy to make an appointment for a tour.

Read more
Contact us

iQ Makelaars Kantoor Enschede
Martin Grave
Roessinghsbleekweg 21,
7522 AH  Enschede

T  053 - 760 1600
E  Enschede@iQMakelaars.nl

Specifications

Construction

  • Type Houses
  • Type Free-standing
  • Construction year 1989

General

  • Availabilty In consultation

Energy

  • Energy label A
  • Boiler Combi
  • Boiler owned Ja
  • Boiler fuel Gas
  • Boiler year 2009
  • Hot water heating Ja
  • Present isolation Dakisolatie, muurisolatie, glasisolatie

Layout

  • Bedrooms 2

Services

  • Parking lot Ja

Dimensions

  • Living area 95 m²
  • Plot area 5155 m²
  • House contents 452 m³
Read more

Sign up for our housing e-mail / recent offers!

Mapping

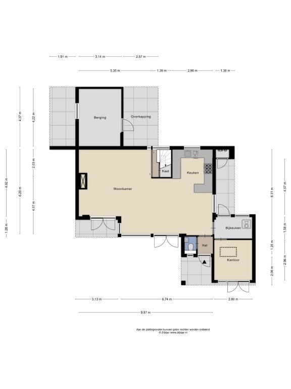
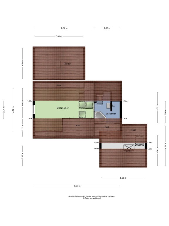
  Plattegrond Meijersgaardenweg 1 C HAAKSBERGEN
  Plattegrond Meijersgaardenweg 1 C HAAKSBERGEN
  Plattegrond Meijersgaardenweg 1 C HAAKSBERGEN
  Plattegrond Meijersgaardenweg 1 C HAAKSBERGEN

Request viewing Meijersgaardenweg 1 C

Follow us