HENGELO, Lindenweg 25
 
  • TypeSemidetached
  • Living area109 m²
  • Plot size145 m²
  • Bedrooms3
  • GarageYes
  • Available since25-10-2021
  • Availabilty In consultation
Request viewing

Description Lindenweg 25

In a pleasant neighborhood near the city center and shopping center is this characteristic atmospheric half of a double house with a spacious detached garage/storage room. The house has been modernized and gives a lot of space due to the high ceiling in the living room. In addition, the house is low-maintenance due to the use of, among other things, plastic frames with double glazing.

The garden is ideally located on the west and offers a lot of privacy. It has recently been fitted with new paving and a planter, which makes the garden easy to maintain.

Layout:
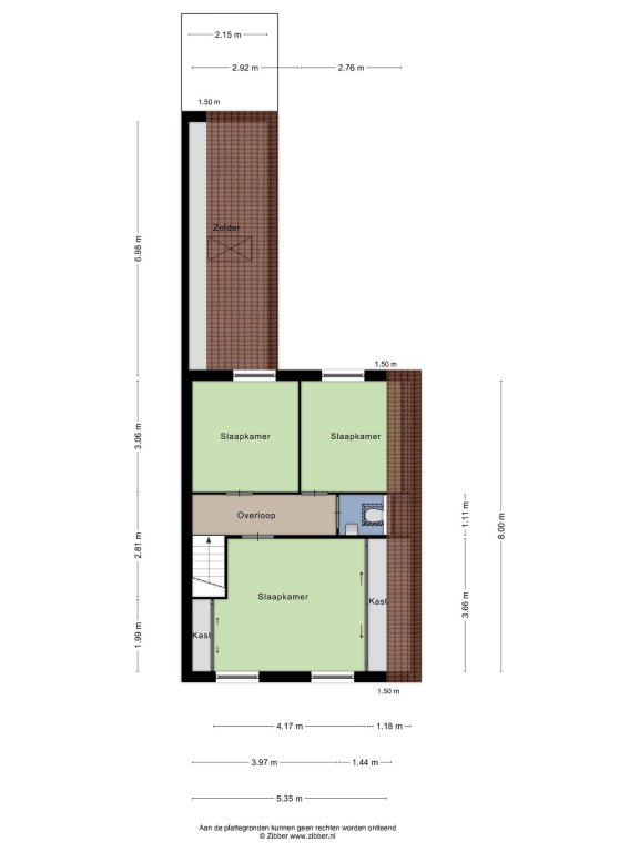
Ground floor: entrance with stairs, hall, stair cupboard, surprisingly spacious L-shaped living room with beautiful oak floor, comfortable gas fireplace with fireplace, modern semi-open kitchen (2017) including a 5-burner hob with extractor and oven (2020), utility room with loft to attic and washing machine connection and spacious bathroom with bath, walk-in shower, washbasin furniture (2020) and a design radiator.

First floor: Landing, 3 bedrooms, 1 with fitted wardrobes.

Particularities:

- Built in 1921.
- Living area 109 m2.
- Plot area 145 m2.
- First floor with a beautiful light laminate floor.
- Roller shutters at the rear.
- Exterior painting 2020.
- Heating and hot water by means of Central heating combi boiler Intergas 2019 (owned)

Read more
Contact us

iQ Makelaars Kantoor Enschede
Martin Grave
Roessinghsbleekweg 21,
7522 AH  Enschede

T  053 - 760 1600
E  Enschede@iQMakelaars.nl

Specifications

Construction

  • Type Houses
  • Type Semidetached
  • Construction year 1921

General

  • Availabilty In consultation

Energy

  • Energy label F
  • Boiler Combi
  • Boiler owned Ja
  • Boiler fuel Gas
  • Boiler year 2019
  • Hot water heating Ja

Layout

  • Bedrooms 3
  • Garage Ja
  • Garden Ja
  • Garden location West

Dimensions

  • Living area 109 m²
  • Plot area 145 m²
  • House contents 425 m³
Read more
  • District and neighborhood
    Tichelwerk
  • Population
    Avg. household size
    1.9 person
  • Retail
    Large supermarket
    0.6km
  • Income
    Avg. income
    €24.200 p/y
  • Transport
    Station
    1.6km
  • Living
    Avg. home value
    €167.000
    Koopwoningen
    59%

Sign up for our housing e-mail / recent offers!

Mapping

  Plattegrond Lindenweg 25 HENGELO
  Plattegrond Lindenweg 25 HENGELO
  Plattegrond Lindenweg 25 HENGELO
  Plattegrond Lindenweg 25 HENGELO
  Plattegrond Lindenweg 25 HENGELO
  Plattegrond Lindenweg 25 HENGELO

Request viewing Lindenweg 25

Comparable offer HENGELO

Willy Albertistraat Sold
HENGELO
Willy Albertistraat 13
   € 269.500,- k.k.
Details
Beukweg Sold
HENGELO
Beukweg 92 A
   € 259.500,- k.k.
Details

Follow us