VRIEZENVEEN, De Patrijs 43
 
  • TypeSemidetached
  • Living area141 m²
  • Plot size255 m²
  • Bedrooms4
  • GarageYes
  • Available since21-01-2022
  • Availabilty In consultation
Request viewing

Description De Patrijs 43

Read more
Contact us

iQ Makelaars Kantoor Almelo
Danny Mulder
Twentepoort Oost 34
7609 RG Almelo

T  0546 - 305 301
E  Almelo@iQMakelaars.nl

Specifications

Construction

  • Type Houses
  • Type Semidetached
  • Construction year 1974

General

  • Availabilty In consultation

Layout

  • Bedrooms 4
  • Garage Ja
  • Garden Ja
  • Garden location Zuidwest

Services

  • Parking lot Ja
  • Solar panels Ja

Dimensions

  • Living area 141 m²
  • Plot area 255 m²
  • House contents 505 m³
  • Garden surface 100 m²

Energy

  • Boiler Combi
  • Boiler owned Ja
  • Boiler fuel Gas
  • Boiler year 2020
  • Hot water heating Ja
  • Present isolation Dakisolatie, glasisolatie
Read more
  • District and neighborhood
    Westerweilanden-Elzenhoek
  • Population
    Avg. household size
    2.4 person
  • Retail
    Large supermarket
    0.9km
  • Income
    Avg. income
    €23.300 p/y
  • Transport
    Station
    7.1km
  • Living
    Avg. home value
    €208.000
    Koopwoningen
    71%

Sign up for our housing e-mail / recent offers!

Mapping

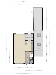
  Plattegrond De Patrijs 43 VRIEZENVEEN
  Plattegrond De Patrijs 43 VRIEZENVEEN
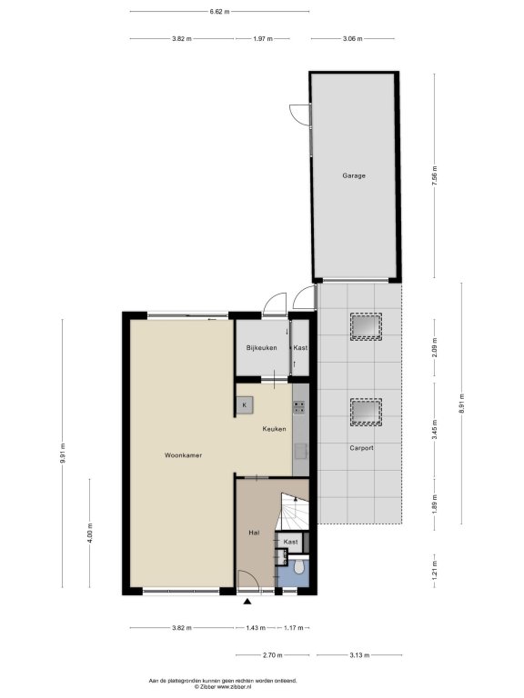
  Plattegrond De Patrijs 43 VRIEZENVEEN
  Plattegrond De Patrijs 43 VRIEZENVEEN
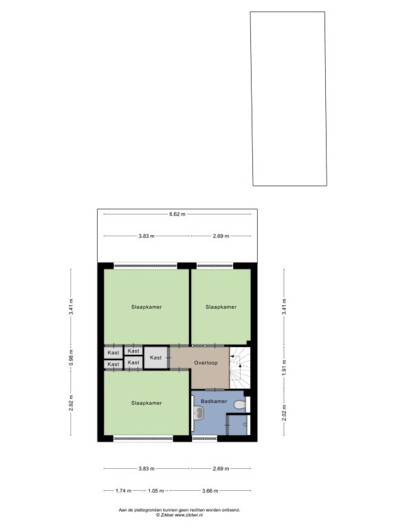
  Plattegrond De Patrijs 43 VRIEZENVEEN
  Plattegrond De Patrijs 43 VRIEZENVEEN
  Plattegrond De Patrijs 43 VRIEZENVEEN
  Plattegrond De Patrijs 43 VRIEZENVEEN

IMZ_DOCUMENTS

Request viewing De Patrijs 43

Follow us